




Brand New Townhome | 3 BR/2.5BA | 1-Car Garage | Near Downtown Mooresville
Mooresville, NC 28117
About this home
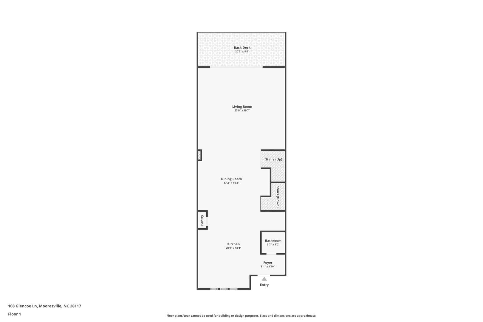
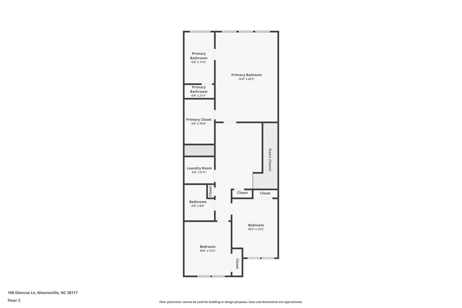
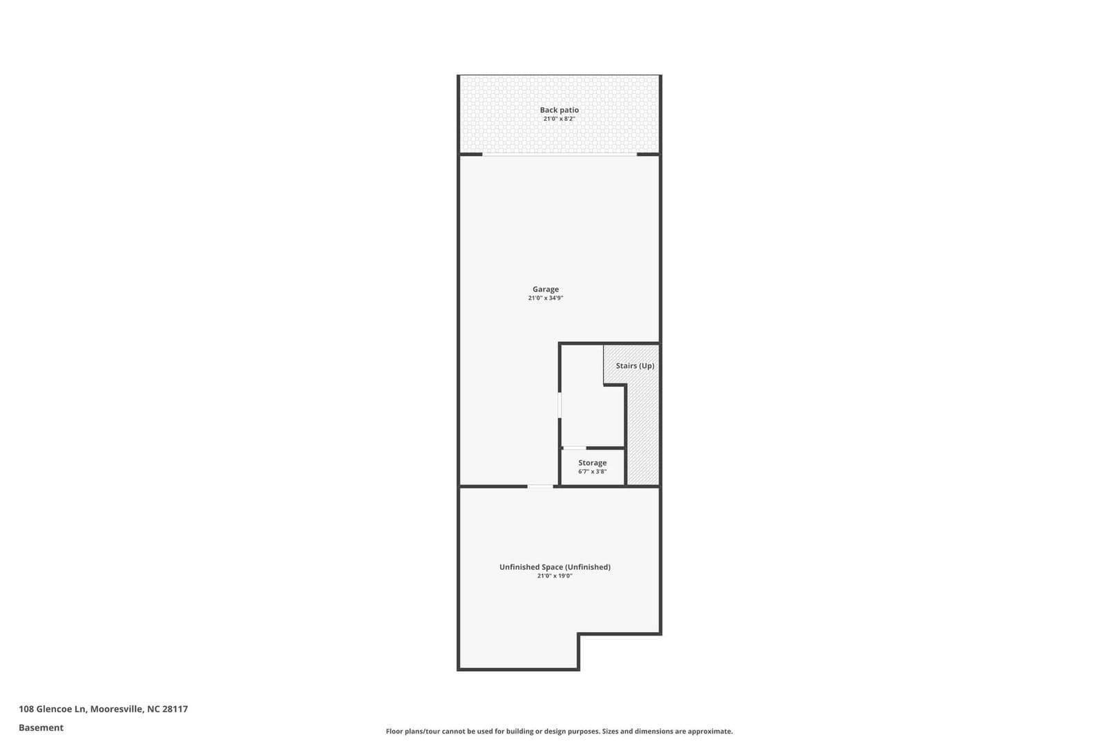
Be the first to live in this brand-new 3 bed/2.5 bath townhome just minutes from Downtown Mooresville and Main Street. Bright, modern, and low-maintenance living with easy access to shopping, dining, and daily essentials.
Property Features:
• 3 Bed / 2.5 Bath
• 1-car garage + driveway
• Modern kitchen: range, fridge, dishwasher, microwave
• Central A/C + forced air heat
• Washer/dryer hookups
• 1 Gbps internet available ($69/mo)
All Pets Welcome: $250 fee + $25/mo per pet
Costs:
RBP*: $64.95/mo
Residents responsible for utilities
One Time Deposit | Admin: $199 | App: $69
Rental Criteria: 575+ credit | 3x income | No evictions | No active bankruptcies
*Resident Benefits Package (RBP): $64.95/mo
Includes: Renters Insurance, Pest Control, Filter Delivery, Resident Rewards Program (Points for paying rent which can then be redeemed for rewards), Credit Building, $1,000,000 Identify protection, Move-in Concierge (Utilities, Cable,and Internet)
Resident Benefit: Wealth Building Rewards (powered by Roots) is an optional program available to Northpoint residents that supports financial education, rewards for saving/investing habits, and credit-building tools. Learn more: https://www.wealthbuildingrewards.com/north-point/home
*Equal Housing Opportunity
*Scam Notice: We do not advertise on Craigslist, LetGo. Report any suspicious listings. Do not give cash or send money. All Applications should be submitted through Appfolio.
This home is in Lake Norman West
Explore the neighborhood guide to learn about schools, commute times, and local favorites.
Read the Lake Norman West guide →